+
Clavardez avec moi

+
Che Crockatt

Che Crockatt
Courtier immobilier

Cellulaire : 514 823-6971


Duplex à vendre, Montréal (Saint-Laurent) |

Imprimer Retour aux propriétés
vendu
Duplex vendu, Montréal (Saint-Laurent)

3881 , 3883 Boul. Henri-Bourassa O. , Montréal (Saint-Laurent)
No Centris 15985649

Pièce(s)

6 Pièce(s)

Chambre(s)

3 Chambre(s)

Salle(s) de bain

2 Salle(s) de bain

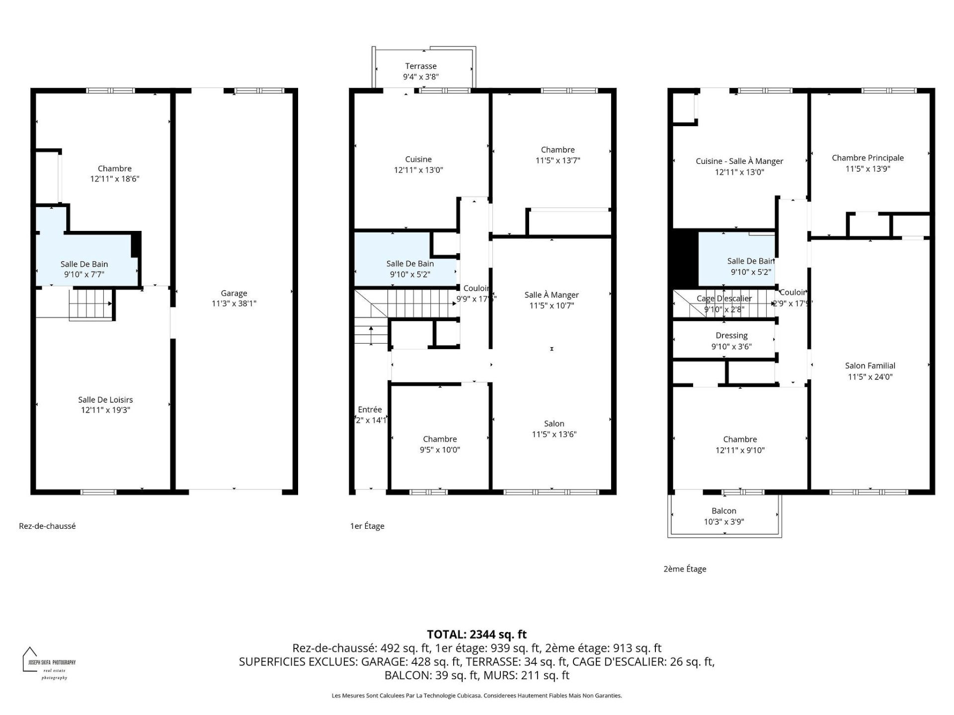
Duplex à double occupation à fort potentiel situé au coeur de Saint-Laurent. Deux logements vacants offrant une grande flexibilité pour propriétaire-occupant ou investisseur. Possibilité d'ajouter un logement au sous-sol (sous réserve des autorisations municipales) afin d'augmenter les revenus. Garage double et cour arrière clôturée sans voisin arrière, adossée à la voie ferrée. Nombreuses rénovations majeures effectuées. Emplacement recherché près du métro Côte-Vertu, REM, écoles, commerces, parcs et services.

Informations détaillées

Caractéristiques

Genre de propriété
Duplex
Année de construction
1959
Type de bâtiment
En rangée
Possibilité d'échange
Dimensions du bâtiment
7.76 m x 12.34 m - Irr
Certificat de localisation
Superficie habitable
Dimensions du terrain
7.82 m x 30.63 m - Irr
Prise de possession
30 jours
Zonage
Résidentiel
Système d'égouts
Municipal
Piscine
Approvisionnement en eau
Municipalité
Stationnement (total)
Fondation
Béton coulé
Allée
Asphalte
Revêtement de la toiture
Garage
Attaché
Revêtement
Terrain
Clôturé
Fenestration
Topographie
Type de fenestration
Particularités du site
Énergie/Chauffage
Électricité
Vue
Sous-sol
Proximité
Transport en commun, École secondaire, Réseau Express Métropolitain (REM), École primaire, Piste cyclable, Parc-espace vert, Garderie/CPE, Cegep, Autoroute/Voie rapide
Salle de bains
Stationnement
Au garage, Extérieur
Mode de chauffage
Plinthes électriques
Dimensions
Largeur du bâtiment
7.76 m
Profondeur du bâtiment
12.34 m
Façade du terrain
7.82 m
Profondeur du terrain
30.63 m
Superficie du terrain (p.c.)
239.80 m²
Frais et taxes
Taxes scolaires :
433$ (2025)
Taxes municipales :
3 533$ (2025)
Total
3 966$
Évaluation municipale
Année
2024
Terrain
185 800$
Bâtiment
419 000$
Total
604 800$
Revenus annuels bruts (potentiels)
Résidentiels
48 000$
Total des revenus
48 000$
Voir plus Voir moins

Particularités des pièces

Pièce(s) : 6    |   Chambre(s) : 3    |   Salle(s) de bain : 2    |    Salle(s) d'eau : 0

Pièce(s)
Niveau
Dimensions
Revêtement de sol
Informations additionnelles

Inclusions


Lumière, cabanon et module de jeu

Addenda


Occasion exceptionnelle -- Duplex à fort potentiel au coeur

de Saint-Laurent

Idéalement situé au coeur même de Saint-Laurent, ce duplex

à fort potentiel avec double occupation représente une

opportunité rare, autant pour un propriétaire-occupant que

pour un investisseur. La propriété comprend deux logements

vacants, offrant une flexibilité immédiate pour y habiter,

optimiser ou repositionner l'immeuble dans un secteur où la

demande demeure très élevée.

Le duplex présente également un important potentiel de

valorisation, incluant la possibilité d'ajouter un logement

au sous-sol (sous réserve des autorisations municipales),

permettant une augmentation du revenu locatif à moyen et

long terme. La propriété dispose d'un garage double ainsi

que d'une cour arrière entièrement clôturée sans voisin

arrière, l'immeuble étant adossé à la voie ferrée, ce qui

procure un dégagement appréciable.

L'immeuble se distingue aussi par les nombreuses

rénovations majeures effectuées au fil des ans, offrant

tranquillité d'esprit et limitant les dépenses en capital

futures. Les travaux incluent une toiture neuve, le

remplacement complet du mur de brique arrière avec ajout

d'isolant, la conversion du chauffage au mazout vers un

système électrique, la rénovation complète des deux

cuisines (rez-de-chaussée et étage), ainsi que la

rénovation complète de trois salles de bain (sous-sol,

rez-de-chaussée et étage). S'ajoutent à cela le

remplacement des fenêtres du sous-sol, l'installation d'un

plancher en époxy au sous-sol, le remplacement de la porte

de garage, de la porte entre le garage et la salle

familiale du sous-sol, la reconstruction du balcon avant au

deuxième étage avec nouveaux garde-corps, ainsi que le

remplacement des marches extérieures avant.

L'emplacement est tout simplement exceptionnel. À proximité

du métro Côte-Vertu et également près de la station REM Du

Ruisseau, la propriété bénéficie d'un accès remarquable au

transport en commun, facilitant les déplacements vers le

centre-ville de Montréal et les environs. Les principaux

axes routiers sont également facilement accessibles.

Le quartier offre une qualité de vie incomparable grâce à

la proximité de plusieurs écoles primaires et secondaires,

du Cégep de Saint-Laurent, de centres commerciaux tels que

Place Vertu et le Centre Rockland, de nombreux restaurants,

cafés et lieux de culte, ainsi que de vastes espaces verts

comme le parc Marcel-Laurin et le parc-nature du

Bois-de-Liesse. On y retrouve également des piscines

publiques, complexes sportifs et le centre civique de

Saint-Laurent.

Une propriété offrant un équilibre rare entre emplacement,

condition, flexibilité et potentiel d'optimisation, dans

l'un des secteurs les plus recherchés de Montréal.

Voir plus Voir moins

Dans le même quartier

Demandez une visite ou des informations
Avis sur les cookies

Nous utilisons des cookies pour vous offrir la meilleure expérience possible sur notre site web.
En poursuivant votre navigation, vous acceptez l'utilisation des cookies par notre site web, pour en savoir plus cliquez ici.